Briery Croft
Location Eaton, Cheshire
Client Rough Hey Ltd
Scope Barn Conversion
Status Completed 2014
Contractor Rough Hey Ltd
Landscaping Barnes Walker
Planning Authority Cheshire East

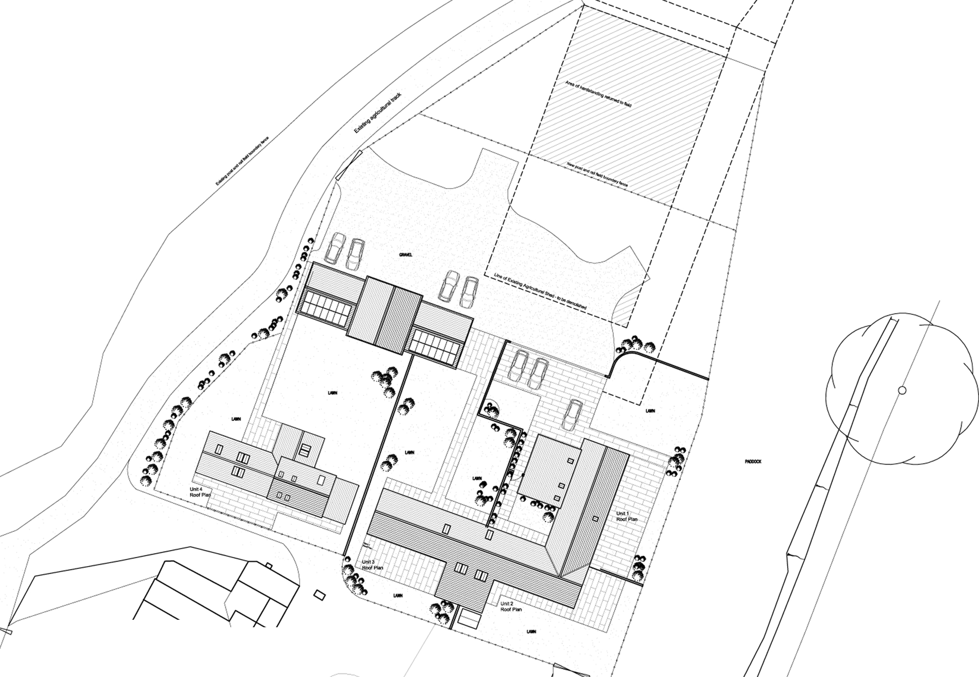
Planning consent had been granted for the conversion of the detached barn to a small dwelling. During the moratorium on new dwellings, Hayes and Partners gained consent which transferred the residential use to the large barn which would be converted to a seven bedroom home and required demolition of the small barn.
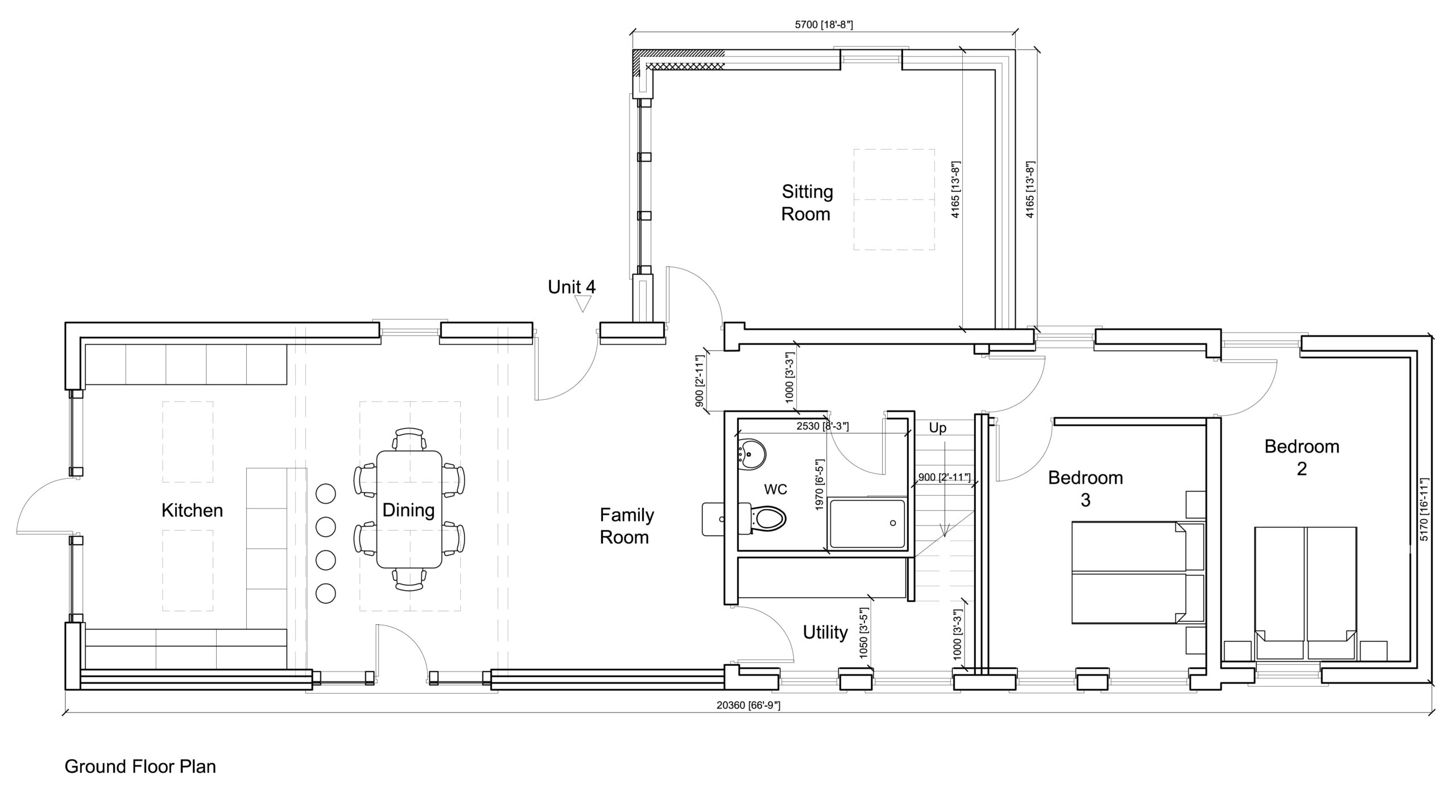
When Rough Hey Ltd brought the site, Hayes and Partners gained planning consent to convert the large barn into three dwellings and retain the small barn for the fourth. As brown long eared bats were present in the large barn, the local authority allowed the replacement of a large stable building with a brick garage block with purpose build bat loft over the central section.
The dwellings are heated by a communal bio-mass unit to meet the requirements of Eco-Homes Excellent standard (equivalent CSH Code 4).
Planning consent was granted for a 30% extension on this dwelling (after occupation) in 2017.










